音视频课:方案优化的秘籍:提升利用率
扫描上方二维码,开始学习。

模块化进步
我相信大家都有这样的经历,要学的知识太多。建筑历史,工艺,心理学,美学,商业分析,提案汇报等等。。
而所有要学的知识点,都可以归纳成3大主题。
功能
流线
形式
举例:如喜茶的空间文化体验,这就可以归纳到形式部分。量贩式KTV里的核心竞争力,则是音响与整体气氛,音响归属于功能。
100平以下的私人住宅,因为业主比较穷,总是想追求更多的功能。那就是流线当中利用率。而大型公建中的流线梳理,更注重分区,如医院要保证洁污分流,避免二次交叉感染。

设计师必备技能

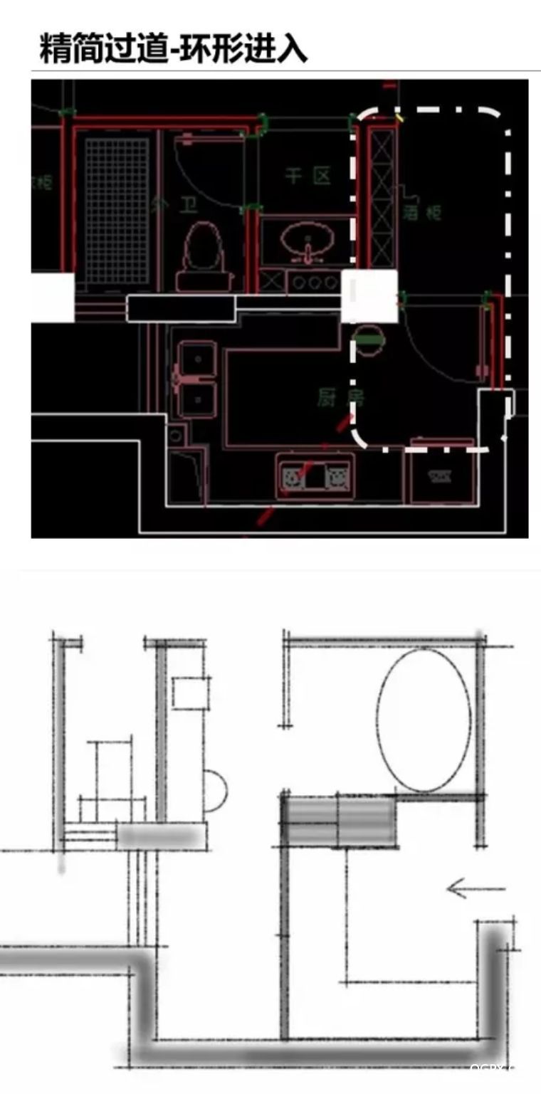
厨房太小,设计单流线900,外加600台面。整体宽度,控制在1500,将书房扩大。卧室采取环入式,不但能将零碎流线,集体整合。还能增加一个功能间,作为厨房补充。
在这背后,用的是哪些原理?这些原理,能不能在各种空间类型中使用?
能!

利用率原理
一个公式,两大原型。覆盖95%的利用率知识。
实用面积=总面积-过道面积
过道面积=总面积-实用面积
实用也就是实际利用的面积,如果从这个角度下手,我们很难找到一个循之有效的方法。
将公式变形一下,过道面积作为一个总的控制点。而过道就是人走的空间,人的尺度是固定的。
标准肩宽是在380-420,最小可极限行走的单人尺度是500,若舒服一些则是900。双人过道常规尺寸则是1200。
这样一来,我们就可以做尺度调节,根据自己的需要。将过道尺寸控制在500-1200之间。这样一来,大多数私人住宅的过道有一个控制按钮。利用率也会大大提升。
两大原型
看完基本公式,我们再来想想实际问题。医院,住宅,商场,酒店,项目层出不穷。
如果我们从利用率的角度来看,无非两点!
单空间利用率,怎么提升上去?
多空间利用率,怎么提升上去?3个5个,甚至10个?
我们从更高的一个角度,去做归纳总结。掌握原型,以不变应万变。




抓两极,控变化。一个标准的3M*3M的室内空间,用400的柜子进行填充利用。过道面积从7.8减少到4.68。利用率,直接翻倍!
一句话总结:单空间走进去,四面八方都能用。
为什么要中间要增加一个柜子?因为过道面积太大,走道尺寸并不是极限尺寸。
这个时候,又出现一个纠结的问题,按理来说:利用率最高,四面八方都能用。中间的柜子,应该是800。但继续缩小过道,人走起来不舒服。

借尺寸:拆掉墙体,借200,从左右过道各借100。这个时候,单空间利用率达到最大化。而对整体的影响,微乎其微。
多空间
搞定单空间,我们再来看多空间。这就简单很多了。

每两个柜子是一个空间。按常规方式,排列填满,过道则是:56.5,环形进入则是49.6。利用率提升10%,假如你是1000平的办公室,凭空多出两间会议室。多空间适用于任意空间,让我们通过几个案例,来看看非凡的效果。

环形进入,功能成间,将原来零散流线重新组织,多出一个浴缸与生活阳台!


玄关,储藏,公卫,保姆间、储藏柜。通过环形进入,集中整合。将面积留给需要表现造型的客厅等区域。



减少过道尺寸,减少零碎反复的流线,环形进入。多一个起居室!

环形进入,整合多个空间,类似的例子太多!

练习注意事项
1 :多积累,多看数百个优秀案例如何提升利用率。是紧扣过道,还是功能重组,还是环形进入,或是走进去,四面八方都能用。如果你是背图系成员,挑选顶尖大师的平面,直接背。
2 :熟练掌握每个空间的最小尺寸,精简流线,画方案,只画隔墙图。画完整浪费时间,单纯提升,一天画十几个隔墙分隔图。一周内利用率不是问题。
3 :看完视频后,请重复上两个步骤。谢谢!
扫描上方二维码,开始学习。
上一篇:商务形象魅力变形计:轻松打造专属职场魅力形象
下一篇:韩焱·给职场人的终身学习课
版权声明:本站所有课程及人物版权归课程主办方或主讲人所有,如有侵权请联系删除。





















